Историческое здание Конюшни
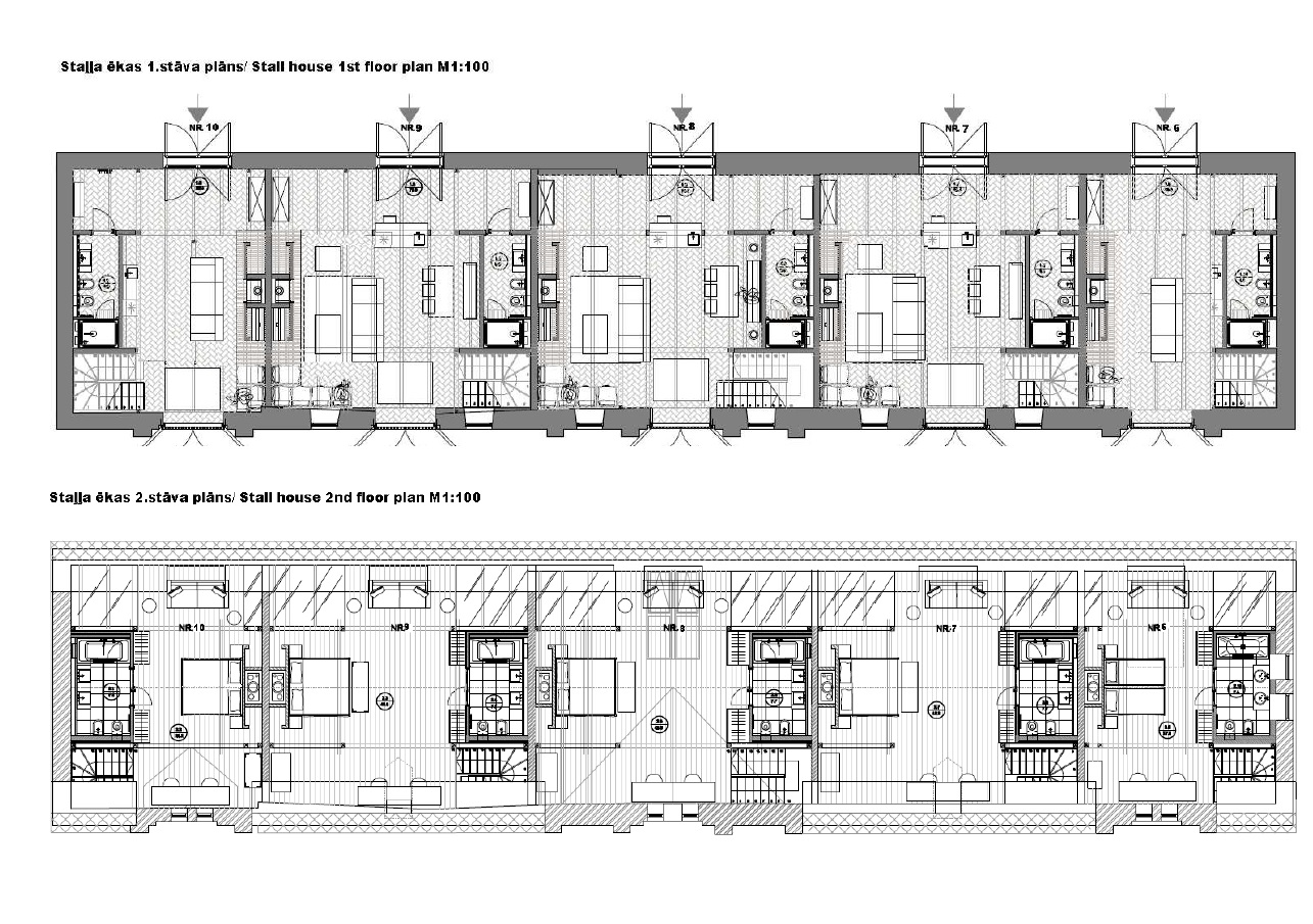
В историческом здании Конюшни расположены пять двухэтажных апартаментов с просторной гостиной, кухней, большими панорамными окнами, из которых открывается прекрасный вид на двор усадьбы. На втором этаже находится большая спальня. У каждого из апартаментов отдельный вход с ухоженным садиком, который располагает к романтическому настроению в живописной атмосфере.
ПЛАНИРОВКА ПОМЕЩЕНИЙ

